- 1
- 2
- 3
- 4
- 5
813 High Street Epping, Epping, VIC 3076
No inspections are currently scheduled. to arrange an appointment.
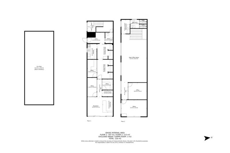
Prime Exposure - Whole Building For Lease
Situated on the corner of High Street and Memorial Avenue Epping, this high profile site will expose your business to thousands of cars daily. The ground floor premises are partitioned with offices and work stations while the first level has 2 partitioned offices together with a large open plan. Both levels have kitchenettes and bathrooms. There are four onsite car parking bays with ample car parking adjacent the building. Versatile Commercial 1 Zoning makes this property ideal for all types of businesses. Accountants, Real Estate Agents, Psychologist, Dentists, Allied Health, Professional Office Suites, etc. Public Transport: Bus is 20m away and Epping Train Station 1.3 km away. Handy to Pacific Epping Shopping Centre and the Northern Hospital. Register your interest today.
Floorplans & Interactive Tours
More Properties from EPPING
More Properties from The Real Estate Business - Epping
Not what you are looking for?
813 High Street Epping, Epping, VIC 3076
No inspections are currently scheduled. to arrange an appointment.
 Home Loans
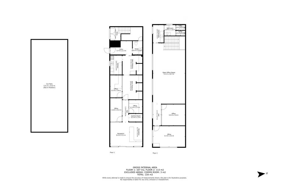
Prime Exposure - Whole Building For Lease
Situated on the corner of High Street and Memorial Avenue Epping, this high profile site will expose your business to thousands of cars daily. The ground floor premises are partitioned with offices and work stations while the first level has 2 partitioned offices together with a large open plan. Both levels have kitchenettes and bathrooms. There are four onsite car parking bays with ample car parking adjacent the building. Versatile Commercial 1 Zoning makes this property ideal for all types of businesses. Accountants, Real Estate Agents, Psychologist, Dentists, Allied Health, Professional Office Suites, etc. Public Transport: Bus is 20m away and Epping Train Station 1.3 km away. Handy to Pacific Epping Shopping Centre and the Northern Hospital. Register your interest today.
































