- 1
- 2
- 3
- 4
- 5
1 Everard Court, Mawson Lakes, SA 5095
No inspections are currently scheduled. to arrange an appointment.
Luxury Living with Low Maintenance Appeal!
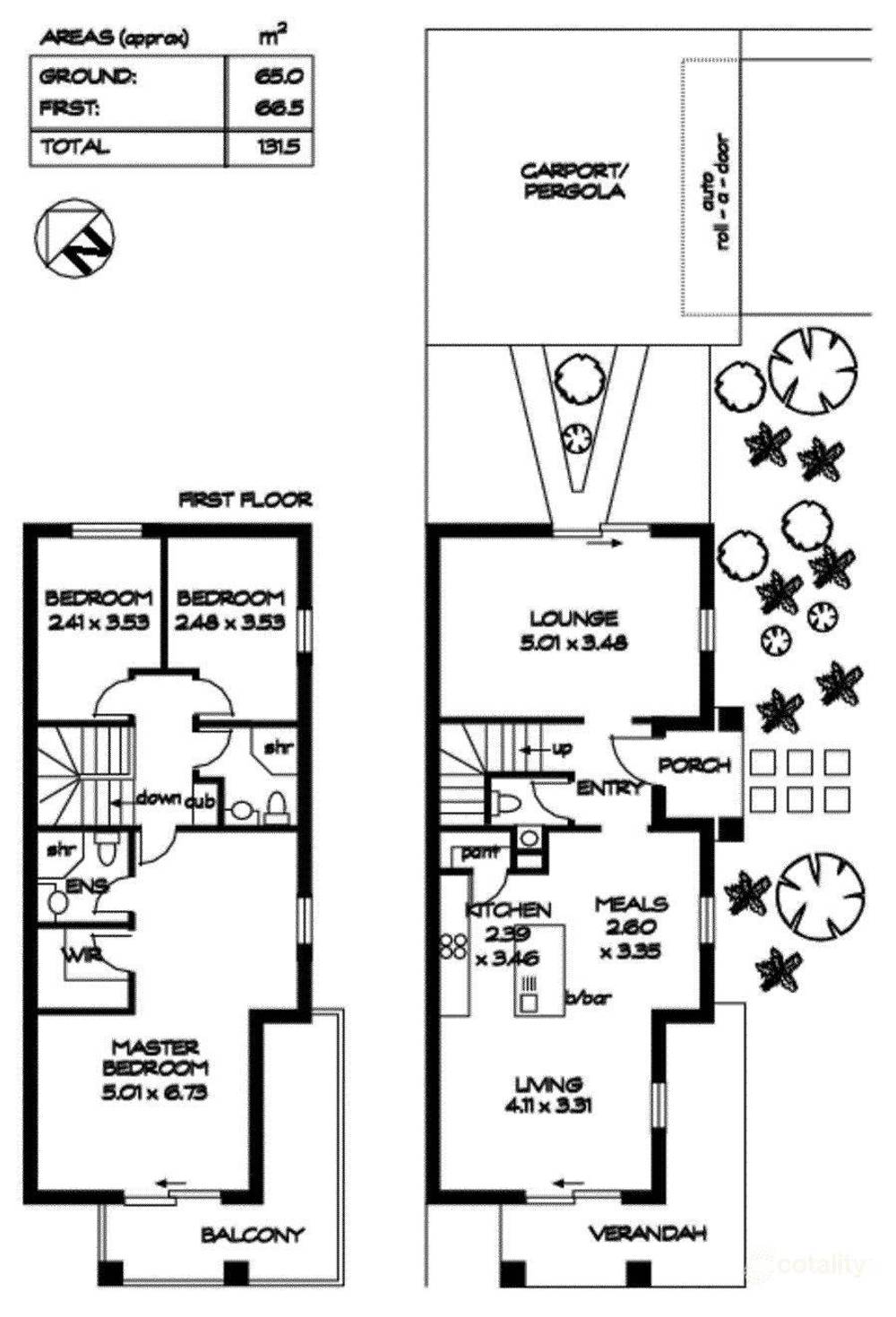
Step into a world of style and sophistication with this trendy, move-in-ready home - designed to impress and waiting for your personal touch! From the moment you enter, you'll be captivated by stunning porcelain tiles flowing through the spacious main living areas. The open-plan design seamlessly connects the casual meals and dining spaces, all beautifully illuminated by sleek downlights. The modern kitchen is a chef's delight, featuring a gas cooktop, electric oven, pantry, and provision for a dishwasher - all finished in timeless neutral tones to suit any style. A separate powder room and a third WC add extra convenience, while the generous family room overlooks a private garden, creating the perfect spot to relax or entertain. Upstairs, you'll find a spacious master suite complete with sliding doors opening to a private balcony - the ideal place for your morning coffee. Enjoy a walk-in wardrobe and a luxurious ensuite with a corner shower. A versatile parents' retreat or study area and ample hallway storage add to the thoughtful layout. The main bathroom is equally impressive, showcasing high-quality fixtures and a designer feel. Additional features include a double carport with a secure roller door, and a low-maintenance outdoor area to enjoy without the upkeep. Please contact Misal Patel on 0450 405 353 or Khushi Shah on 0451 923 357 for more information. RLA 300 185 Disclaimer: The information contained in this website has been prepared by eXp Australia Pty Ltd ("the Company") and/or an agent of the Company. The Company has used its best efforts to verify, and ensure the accuracy of, the information contained herein. The Company accepts no responsibility or liability for any errors, inaccuracies, omissions, or mistakes present in this website. Prospective buyers are advised to conduct their own investigations and make the relevant enquiries required to verify the information contained in this website.
Floorplans & Interactive Tours
More Properties from Mawson Lakes
More Properties from Exp Real Estate Australia - RLA300185
Not what you are looking for?
1 Everard Court, Mawson Lakes, SA 5095
No inspections are currently scheduled. to arrange an appointment.
Home Loans
Luxury Living with Low Maintenance Appeal!
Step into a world of style and sophistication with this trendy, move-in-ready home - designed to impress and waiting for your personal touch! From the moment you enter, you'll be captivated by stunning porcelain tiles flowing through the spacious main living areas. The open-plan design seamlessly connects the casual meals and dining spaces, all beautifully illuminated by sleek downlights. The modern kitchen is a chef's delight, featuring a gas cooktop, electric oven, pantry, and provision for a dishwasher - all finished in timeless neutral tones to suit any style. A separate powder room and a third WC add extra convenience, while the generous family room overlooks a private garden, creating the perfect spot to relax or entertain. Upstairs, you'll find a spacious master suite complete with sliding doors opening to a private balcony - the ideal place for your morning coffee. Enjoy a walk-in wardrobe and a luxurious ensuite with a corner shower. A versatile parents' retreat or study area and ample hallway storage add to the thoughtful layout. The main bathroom is equally impressive, showcasing high-quality fixtures and a designer feel. Additional features include a double carport with a secure roller door, and a low-maintenance outdoor area to enjoy without the upkeep. Please contact Misal Patel on 0450 405 353 or Khushi Shah on 0451 923 357 for more information. RLA 300 185 Disclaimer: The information contained in this website has been prepared by eXp Australia Pty Ltd ("the Company") and/or an agent of the Company. The Company has used its best efforts to verify, and ensure the accuracy of, the information contained herein. The Company accepts no responsibility or liability for any errors, inaccuracies, omissions, or mistakes present in this website. Prospective buyers are advised to conduct their own investigations and make the relevant enquiries required to verify the information contained in this website.


















