- 1
- 2
- 3
- 4
1/135 Mandorla Estate, Munno Para, SA 5115
No inspections are currently scheduled. to arrange an appointment.
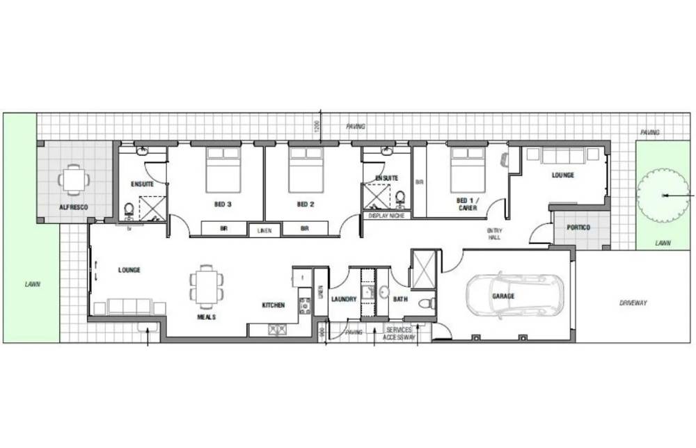
High-Yielding NDIS Property: $2239/Week Rental Income and $116,000 Annual Return! Ideal 3-Bedroom Investment with Strong Cashflow Potential!
Welcome to an Exceptional NDIS Property Offering Incredible Returns! This lucrative investment opportunity presents a remarkable rental income of $2239 per week, resulting in an impressive annual return of $116,000. With a rental yield of 14.6%, this property is a standout choice for investors seeking excellent positive cashflow. Featuring 3 spacious bedrooms, this property is specifically designed to cater to the needs of two NDIS participants along with a dedicated carer. The layout and amenities are thoughtfully arranged to provide a comfortable and supportive living environment. As an NDIS property, it offers the advantage of stable, long-term tenancy, ensuring a consistent and reliable income stream for the astute investor. The demand for NDIS properties remains high, making this investment an attractive option for those looking to capitalize on the growing market. Not only does this property promise exceptional rental returns, but it also boasts a range of other benefits. Its location offers convenient access to essential amenities, including medical facilities, transport links, and community services. This prime positioning enhances the property's appeal and adds further value to the investment. Investing in this NDIS property provides the opportunity to make a positive impact on individuals' lives while securing a lucrative financial future. Don't miss out on this extraordinary chance to acquire a highly sought-after property with exceptional positive cashflow potential. Contact us today to explore this outstanding investment opportunity and witness firsthand the remarkable returns it can offer. Act quickly to secure your position in this thriving market!
Floorplans & Interactive Tours
More Properties from MUNNO PARA
More Properties from Oxbridge - National
Not what you are looking for?
1/135 Mandorla Estate, Munno Para, SA 5115
No inspections are currently scheduled. to arrange an appointment.
Home Loans
High-Yielding NDIS Property: $2239/Week Rental Income and $116,000 Annual Return! Ideal 3-Bedroom Investment with Strong Cashflow Potential!
Welcome to an Exceptional NDIS Property Offering Incredible Returns! This lucrative investment opportunity presents a remarkable rental income of $2239 per week, resulting in an impressive annual return of $116,000. With a rental yield of 14.6%, this property is a standout choice for investors seeking excellent positive cashflow. Featuring 3 spacious bedrooms, this property is specifically designed to cater to the needs of two NDIS participants along with a dedicated carer. The layout and amenities are thoughtfully arranged to provide a comfortable and supportive living environment. As an NDIS property, it offers the advantage of stable, long-term tenancy, ensuring a consistent and reliable income stream for the astute investor. The demand for NDIS properties remains high, making this investment an attractive option for those looking to capitalize on the growing market. Not only does this property promise exceptional rental returns, but it also boasts a range of other benefits. Its location offers convenient access to essential amenities, including medical facilities, transport links, and community services. This prime positioning enhances the property's appeal and adds further value to the investment. Investing in this NDIS property provides the opportunity to make a positive impact on individuals' lives while securing a lucrative financial future. Don't miss out on this extraordinary chance to acquire a highly sought-after property with exceptional positive cashflow potential. Contact us today to explore this outstanding investment opportunity and witness firsthand the remarkable returns it can offer. Act quickly to secure your position in this thriving market!
Floorplans & Interactive Tours
Details not provided
