- 1
- 2
- 3
- 4
- 5
12 Nash Street, Jamieson, VIC 3723
No inspections are currently scheduled. to arrange an appointment.
Laurel Berry Lodge
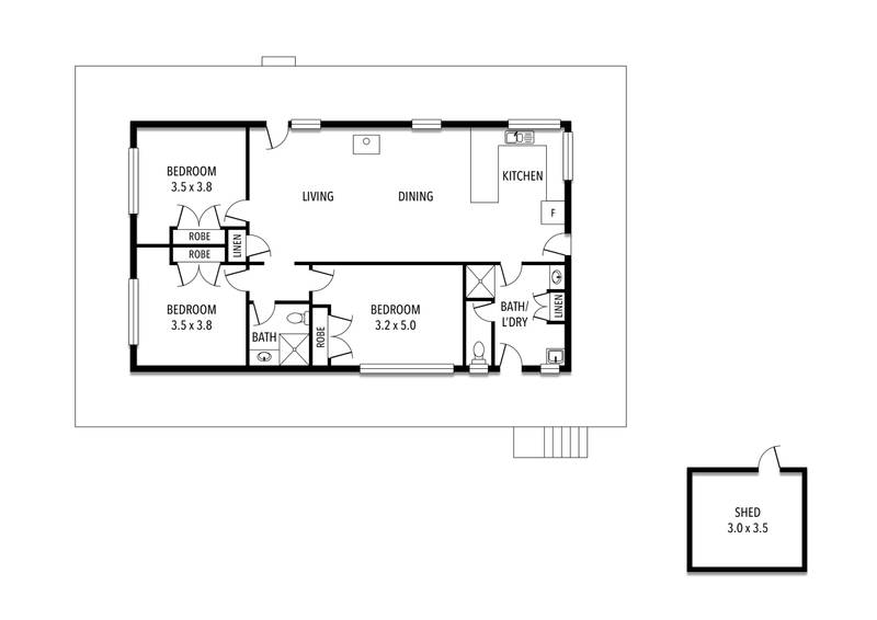
Are you ready to escape to your own private retreat in a truly remarkable setting? Life is good (and a little slower) in Jamieson...and this delightful home is in an ideal location. You can stroll down to the beautiful Jamieson River in just a few minutes, even if you are taking your time to admire the magnificent trees and birdlife. The home itself is immaculate. It has been beautifully maintained and thoughtfully furnished, ready for you to simply unpack your bags and enjoy the great life on offer here in the heart of this picturesque little town. There are 3 double bedrooms, all with ample robing and ceiling fans. The main bathroom is augmented by a second bathroom with external access, which is handy for those outdoor enthusiasts that need to clean up before they join you for dinner. Speaking of dinner, the open plan kitchen is very well appointed making cooking for a crowd a breeze. The adjoining living and dining area is both spacious and cosy with polished timber floors and an exposed brick fireplace with a great wood heater. There's also a modern reverse cycle split system air-conditioner and plenty of natural light from the North facing windows. The wide verandahs that run right around the house provide shade in summer and a selection of great spots to enjoy in all seasons. The verandah has been secured for the safety of small children and pets, and the garden is also fully fenced. The fabulous General Store, local cafe and Courthouse Hotel are within easy walking distance as well as some great swimming holes on the beautiful Jamieson River. Lake Eildon is only a few minutes drive and Mt Buller and Mt Stirling are also within easy reach, plus there's a vast selection of tracks in the nearby State Forests ready for the 4WD and offroad motorbike enthusiasts. But maybe you just want to relax in the afternoon sun on the front verandah with a nice cuppa or beer. It's very peaceful here! If you think you can bear to share this piece of paradise with anyone, you will earn a very nice income from the booming holiday rental market. Laurel Berry Lodge has been a very popular listing on airbnb and other booking sites, and there is even the option to purchase the property fully furnished.
Floorplans & Interactive Tours
More Properties from JAMIESON
More Properties from District Property Group - MANSFIELD
Not what you are looking for?
12 Nash Street, Jamieson, VIC 3723
No inspections are currently scheduled. to arrange an appointment.
Home Loans
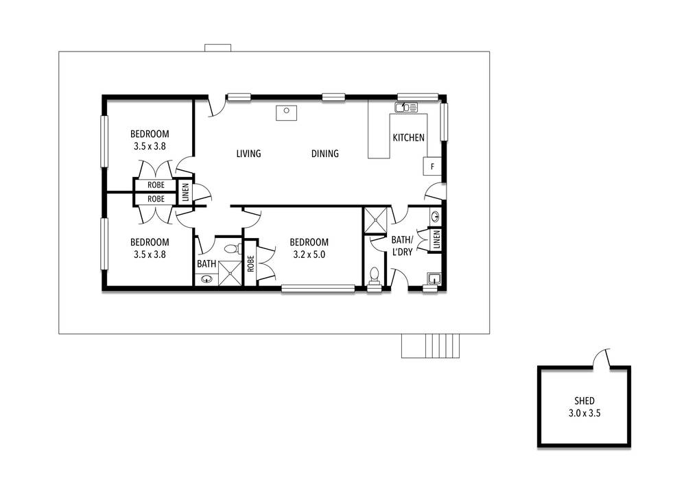
Laurel Berry Lodge
Are you ready to escape to your own private retreat in a truly remarkable setting? Life is good (and a little slower) in Jamieson...and this delightful home is in an ideal location. You can stroll down to the beautiful Jamieson River in just a few minutes, even if you are taking your time to admire the magnificent trees and birdlife. The home itself is immaculate. It has been beautifully maintained and thoughtfully furnished, ready for you to simply unpack your bags and enjoy the great life on offer here in the heart of this picturesque little town. There are 3 double bedrooms, all with ample robing and ceiling fans. The main bathroom is augmented by a second bathroom with external access, which is handy for those outdoor enthusiasts that need to clean up before they join you for dinner. Speaking of dinner, the open plan kitchen is very well appointed making cooking for a crowd a breeze. The adjoining living and dining area is both spacious and cosy with polished timber floors and an exposed brick fireplace with a great wood heater. There's also a modern reverse cycle split system air-conditioner and plenty of natural light from the North facing windows. The wide verandahs that run right around the house provide shade in summer and a selection of great spots to enjoy in all seasons. The verandah has been secured for the safety of small children and pets, and the garden is also fully fenced. The fabulous General Store, local cafe and Courthouse Hotel are within easy walking distance as well as some great swimming holes on the beautiful Jamieson River. Lake Eildon is only a few minutes drive and Mt Buller and Mt Stirling are also within easy reach, plus there's a vast selection of tracks in the nearby State Forests ready for the 4WD and offroad motorbike enthusiasts. But maybe you just want to relax in the afternoon sun on the front verandah with a nice cuppa or beer. It's very peaceful here! If you think you can bear to share this piece of paradise with anyone, you will earn a very nice income from the booming holiday rental market. Laurel Berry Lodge has been a very popular listing on airbnb and other booking sites, and there is even the option to purchase the property fully furnished.


































