- 1
- 2
- 3
- 4
- 5
13 Elvena Circuit, Little Mountain, QLD 4551
No inspections are currently scheduled. to arrange an appointment.
FIRST CLASS FAMILY HOME
Absolutely beautifully presented and destined to impress, this stunning home offers flawless ultra-modern living. Light-filled open plan interiors centre around a stylish kitchen hub, seamlessly connecting to the expansive covered alfresco area - perfect for year-round indoor/outdoor entertaining. The fully fenced garden also features the luxury of a bubbling spa, ideal for unwinding after a busy day. A separate media/lounge provides a valuable second living space for growing families, while the main bedroom is thoughtfully positioned at the front of the home for privacy and separation. The remaining bedrooms are generously sized, each with ceiling fans and built-in robes. Ideally located, you can walk to Meridan State College, Parklands Shopping Centre and public transport. Sunshine Coast beaches are just 5km away, the University Hospital precinct and Bruce Highway are within a 10 minute* drive. This home is perfect for families who value quality living in a friendly community. AT A GLANCE: • Immaculately presented! • Spacious open plan living & dining with outdoor flow • Private north-facing garden with sparkling spa • Central kitchen with island bench & modern finishes • Additional lounge/media room plus study/ 4th bedroom option • Master retreat with ensuite & WIR • Generous remaining bedrooms with BIR & ceiling fans • Ducted air conditioning, 9kw* solar system & water tank LOCATION: • Stunning location opposite park • Family-friendly estate with parks, creek & walkways • Easy Walk to Meridan State School, shops & Tavern • 5km to sunny beaches & easy access to Brisbane • Short 10-minute drive to Sunshine Coast Hospital Hub *Disclaimer: Whilst every effort has been made to ensure the accuracy of these particulars, no warranty is given by the vendor or the agent as to their accuracy. Interested parties should not rely on these particulars as representations of fact but must instead satisfy themselves by inspection or otherwise.
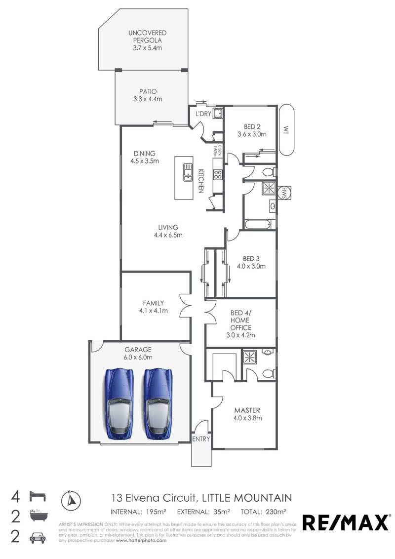
Floorplans & Interactive Tours
More Properties from LITTLE MOUNTAIN
More Properties from RE/MAX Property Sales - Caloundra & Nambour
Not what you are looking for?
13 Elvena Circuit, Little Mountain, QLD 4551
No inspections are currently scheduled. to arrange an appointment.
Home Loans
FIRST CLASS FAMILY HOME
Absolutely beautifully presented and destined to impress, this stunning home offers flawless ultra-modern living. Light-filled open plan interiors centre around a stylish kitchen hub, seamlessly connecting to the expansive covered alfresco area - perfect for year-round indoor/outdoor entertaining. The fully fenced garden also features the luxury of a bubbling spa, ideal for unwinding after a busy day. A separate media/lounge provides a valuable second living space for growing families, while the main bedroom is thoughtfully positioned at the front of the home for privacy and separation. The remaining bedrooms are generously sized, each with ceiling fans and built-in robes. Ideally located, you can walk to Meridan State College, Parklands Shopping Centre and public transport. Sunshine Coast beaches are just 5km away, the University Hospital precinct and Bruce Highway are within a 10 minute* drive. This home is perfect for families who value quality living in a friendly community. AT A GLANCE: • Immaculately presented! • Spacious open plan living & dining with outdoor flow • Private north-facing garden with sparkling spa • Central kitchen with island bench & modern finishes • Additional lounge/media room plus study/ 4th bedroom option • Master retreat with ensuite & WIR • Generous remaining bedrooms with BIR & ceiling fans • Ducted air conditioning, 9kw* solar system & water tank LOCATION: • Stunning location opposite park • Family-friendly estate with parks, creek & walkways • Easy Walk to Meridan State School, shops & Tavern • 5km to sunny beaches & easy access to Brisbane • Short 10-minute drive to Sunshine Coast Hospital Hub *Disclaimer: Whilst every effort has been made to ensure the accuracy of these particulars, no warranty is given by the vendor or the agent as to their accuracy. Interested parties should not rely on these particulars as representations of fact but must instead satisfy themselves by inspection or otherwise.














































