- 1
- 2
- 3
- 4
- 5
1A Esplanade Avenue, Brighton, VIC 3186
No inspections are currently scheduled. to arrange an appointment.
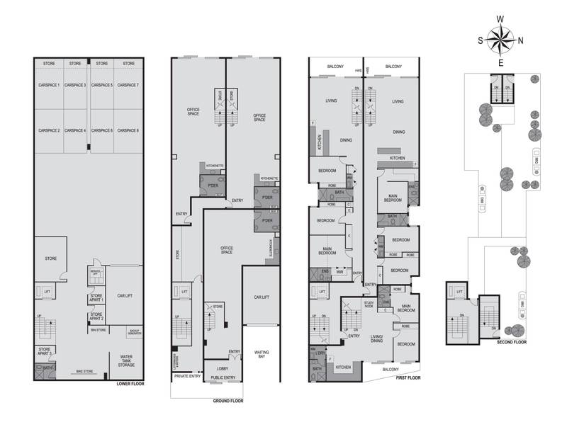
Brilliant Bay Views with Plans & Permits Approved
With Plans & Permits approved for 3 modern townhouses with mixed use residential / Commercial. You're walking into a gold mine. Current property is fresh and bright family home offers convenient location with sweeping panorama views over Brighton Beach and beyond! A good-sized layout features: Two living areas 3 bedrooms plus study Master with En-suite and WIR. Two family bathrooms downstairs and upstairs, loads of storage. Brighton is a popular tourist destination, so properties near Esplanade Avenue might be sought after by both residents and investors looking for vacation rentals or second homes. Secluded in a blue-chip precinct between Xavier's Kostka campus and the beachfront, this beachside oasis has the ideal blend of amenity and privacy with the sand/bay within 150m, a friendly local shopping strip around the corner and Brighton Beach station within a last-minute dash. PLEASE CONTACT NAINA AT 0400700256 TO SCHEDULE A PRIVATE INSPECTION OR FOR ANY QUESTIONS
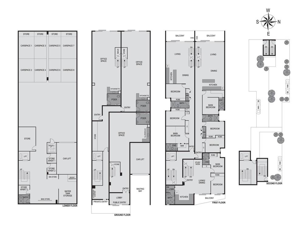
Floorplans & Interactive Tours
More Properties from BRIGHTON
More Properties from First National Avant - BOX HILL
Not what you are looking for?
1A Esplanade Avenue, Brighton, VIC 3186
No inspections are currently scheduled. to arrange an appointment.
Home Loans
Brilliant Bay Views with Plans & Permits Approved
With Plans & Permits approved for 3 modern townhouses with mixed use residential / Commercial. You're walking into a gold mine. Current property is fresh and bright family home offers convenient location with sweeping panorama views over Brighton Beach and beyond! A good-sized layout features: Two living areas 3 bedrooms plus study Master with En-suite and WIR. Two family bathrooms downstairs and upstairs, loads of storage. Brighton is a popular tourist destination, so properties near Esplanade Avenue might be sought after by both residents and investors looking for vacation rentals or second homes. Secluded in a blue-chip precinct between Xavier's Kostka campus and the beachfront, this beachside oasis has the ideal blend of amenity and privacy with the sand/bay within 150m, a friendly local shopping strip around the corner and Brighton Beach station within a last-minute dash. PLEASE CONTACT NAINA AT 0400700256 TO SCHEDULE A PRIVATE INSPECTION OR FOR ANY QUESTIONS




























