- 1
- 2
Hinchinbrook, NSW 2168
No inspections are currently scheduled. to arrange an appointment.
Land and House Package at Premium location in Hinchinbrook
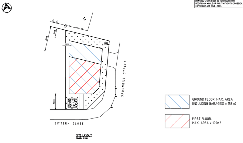
Phone enquiry code for this property : 7385 Land and House Package at Premium location in Hinchinbrook The Land and House residence boasts double storey 4 or 5 well-segregated bedrooms with 2 bathrooms and double garage , strategically positioned throughout the home. The secluded master suite comes complete with its own ensuite and walk-in robe. The open-plan family living area at the back of the house is perfectly designed for entertaining, featuring an elegant kitchen with an island bench, a dining area, and convenient access to a covered outdoor living space. Please note: A two-story house with a maximum building size of 255 square meters can be constructed on this land. The property, benefiting from its corner position, allows for a double garage with access from the side street. The design and size of the building can vary according to your own preference. Price guide varies with the building size you would like to choose for your new home: - Price is $950,000 for 160 SQM Building Size - Price is $1.01 Mil for 180 SQM Building Size - Price is $1.08 Mil for 220 SQM Building Size - Price is $1.13 Mil for 240 SQM Building Size Please contact for more details. Phone enquiry code for this property : 7385
Floorplans & Interactive Tours
More Properties from HINCHINBROOK
More Properties from Minus The Agent - AUSTRALIA
Not what you are looking for?
Hinchinbrook, NSW 2168
No inspections are currently scheduled. to arrange an appointment.
Home Loans
Land and House Package at Premium location in Hinchinbrook
Phone enquiry code for this property : 7385 Land and House Package at Premium location in Hinchinbrook The Land and House residence boasts double storey 4 or 5 well-segregated bedrooms with 2 bathrooms and double garage , strategically positioned throughout the home. The secluded master suite comes complete with its own ensuite and walk-in robe. The open-plan family living area at the back of the house is perfectly designed for entertaining, featuring an elegant kitchen with an island bench, a dining area, and convenient access to a covered outdoor living space. Please note: A two-story house with a maximum building size of 255 square meters can be constructed on this land. The property, benefiting from its corner position, allows for a double garage with access from the side street. The design and size of the building can vary according to your own preference. Price guide varies with the building size you would like to choose for your new home: - Price is $950,000 for 160 SQM Building Size - Price is $1.01 Mil for 180 SQM Building Size - Price is $1.08 Mil for 220 SQM Building Size - Price is $1.13 Mil for 240 SQM Building Size Please contact for more details. Phone enquiry code for this property : 7385




