- 1
- 2
- 3
- 4
- 5
9/2 Venus Court, Banksia Beach, QLD 4507
No inspections are currently scheduled. to arrange an appointment.
Brilliant Location + Central Convenience!
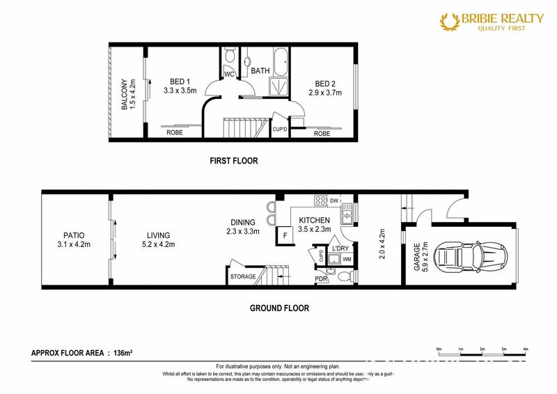
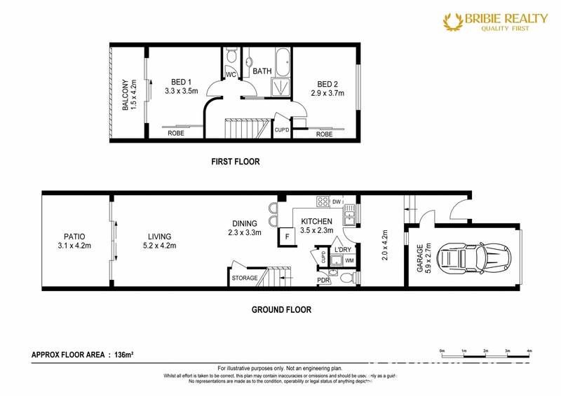
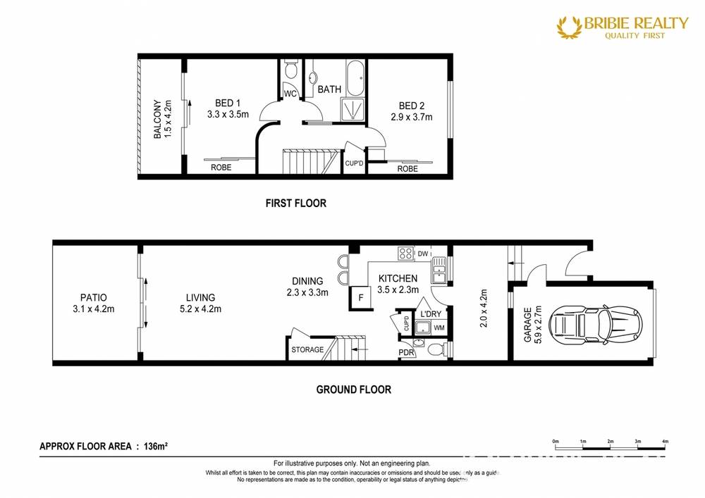
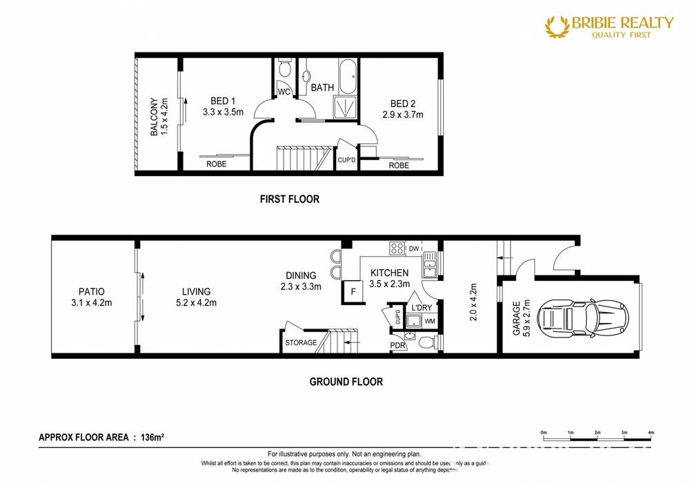
Perfectly positioned townhouse to the highly desired Solander Esplanade beachfront, plus beneficially completed by 2 fenced courtyards. This is where waterfront tranquility meets central convenience. With steps to the wide serene waterway of Pumicestone Passage, this two-level gem offers the ideal blend of comfort and ease of ‘lock-up-and-leave’. Boat ramp close by for kayaking and all water sports for daily adventures. Once inside you’ll be greeted by a massive open plan living area with a modern kitchen providing generous storage capacity. The residence features secure access from your lock-up garage, through the private rear courtyard, as well as the 2nd conveniently located powder room. Ascend to the upper level to discover two bedrooms, with plenty of built-in wardrobes and the king-sized master suite having its own secluded balcony. This master suite boasts high ceilings that create an expansive feel and offers tree-lined views that adds a touch of Island lifestyle. The bedrooms share a separate toilet to the substantial central bathroom of both a bath and shower recess. The lower level provides a versatile space ideal for entertaining, that seamlessly flows to a front easterly facing courtyard primed for landscape creations. The all-weather covered patio is where you can unwind and relax. Tenancy in place thereby requiring notice for viewing. Features you will love: • 2 generous bedrooms • Ideal downstairs powder room • Bathroom upstairs with both bath + shower recess • Massive open plan living • Kitchen storage galore • Easy-care living • East-facing private courtyard + 2nd fenced rear courtyard • Air conditioning and ceiling fans throughout • Secure car garage + visitor parking within complex • Easy-care living • Beachfront across the road • Walk to the waterfront bird sanctuary, parklands, boat ramp and shopping centre • Affordable Body Corporate Central to shopping amenities as like chemist, bakery, butcher, Woolworths and cafes all nearby, + a very short drive to the Pacific Harbour Country Club & Golf Course. A peaceful setting that is already as an investment, or for those planning to downsize to enjoy the Bribie lifestyle - plenty of options! Contact agents to arrange an inspection: Sheri Binzer 0412 666 779 Julie Walton 0438 726 290
Floorplans & Interactive Tours
More Properties from Banksia Beach
More Properties from Bribie Realty - Bribie Island
Not what you are looking for?
9/2 Venus Court, Banksia Beach, QLD 4507
No inspections are currently scheduled. to arrange an appointment.
Home Loans
Brilliant Location + Central Convenience!
Perfectly positioned townhouse to the highly desired Solander Esplanade beachfront, plus beneficially completed by 2 fenced courtyards. This is where waterfront tranquility meets central convenience. With steps to the wide serene waterway of Pumicestone Passage, this two-level gem offers the ideal blend of comfort and ease of ‘lock-up-and-leave’. Boat ramp close by for kayaking and all water sports for daily adventures. Once inside you’ll be greeted by a massive open plan living area with a modern kitchen providing generous storage capacity. The residence features secure access from your lock-up garage, through the private rear courtyard, as well as the 2nd conveniently located powder room. Ascend to the upper level to discover two bedrooms, with plenty of built-in wardrobes and the king-sized master suite having its own secluded balcony. This master suite boasts high ceilings that create an expansive feel and offers tree-lined views that adds a touch of Island lifestyle. The bedrooms share a separate toilet to the substantial central bathroom of both a bath and shower recess. The lower level provides a versatile space ideal for entertaining, that seamlessly flows to a front easterly facing courtyard primed for landscape creations. The all-weather covered patio is where you can unwind and relax. Tenancy in place thereby requiring notice for viewing. Features you will love: • 2 generous bedrooms • Ideal downstairs powder room • Bathroom upstairs with both bath + shower recess • Massive open plan living • Kitchen storage galore • Easy-care living • East-facing private courtyard + 2nd fenced rear courtyard • Air conditioning and ceiling fans throughout • Secure car garage + visitor parking within complex • Easy-care living • Beachfront across the road • Walk to the waterfront bird sanctuary, parklands, boat ramp and shopping centre • Affordable Body Corporate Central to shopping amenities as like chemist, bakery, butcher, Woolworths and cafes all nearby, + a very short drive to the Pacific Harbour Country Club & Golf Course. A peaceful setting that is already as an investment, or for those planning to downsize to enjoy the Bribie lifestyle - plenty of options! Contact agents to arrange an inspection: Sheri Binzer 0412 666 779 Julie Walton 0438 726 290
























































