- 1
- 2
- 3
- 4
- 5
802/585 La Trobe Street, Melbourne, VIC 3000
No inspections are currently scheduled. to arrange an appointment.
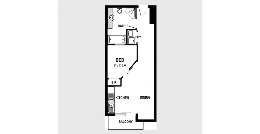
Fantastic Furnished One Bedroom Apartment in CBD
This fantastic one bedroom apartment is located on the 8th level in Harbour View hotel overlooking the vibrant Docklands. The apartment features one bedroom, one bathroom, open kitchen/dining area and a harbour view balcony. All standard furniture included plus all the white goods. It is in the CBD, close proximity to Docklands, Coles Supermarket, Spencer Street shopping center and the Southern Cross Station. *** TO AVOID DISAPPOINTMENT, PLEASE REGISTER TO INSPECT PROPERTIES **** By registering your details, you will be INSTANTLY informed of any updates, changes or cancellations for your property appointment as an open inspection time may subject to change or cancellation at any time, please note you must register the inspection rather than put in enquiry in order to receive update information of the open inspection. ***The photos/video may not accurately reflect the current states of the property include but not limited to the furniture, flooring, decoration and other fitting, please inspect the property or confirm with our staff before applying.
Floorplans & Interactive Tours
More Properties from MELBOURNE
More Properties from Eighth Quarter Box Hill - BOX HILL
Not what you are looking for?
802/585 La Trobe Street, Melbourne, VIC 3000
No inspections are currently scheduled. to arrange an appointment.
Fantastic Furnished One Bedroom Apartment in CBD
This fantastic one bedroom apartment is located on the 8th level in Harbour View hotel overlooking the vibrant Docklands. The apartment features one bedroom, one bathroom, open kitchen/dining area and a harbour view balcony. All standard furniture included plus all the white goods. It is in the CBD, close proximity to Docklands, Coles Supermarket, Spencer Street shopping center and the Southern Cross Station. *** TO AVOID DISAPPOINTMENT, PLEASE REGISTER TO INSPECT PROPERTIES **** By registering your details, you will be INSTANTLY informed of any updates, changes or cancellations for your property appointment as an open inspection time may subject to change or cancellation at any time, please note you must register the inspection rather than put in enquiry in order to receive update information of the open inspection. ***The photos/video may not accurately reflect the current states of the property include but not limited to the furniture, flooring, decoration and other fitting, please inspect the property or confirm with our staff before applying.
Floorplans & Interactive Tours
Details not provided































