- 1
- 2
- 3
- 4
- 5
- 1
- 2
- 3
- 4
- 5
12 Rathowen Parade, Killarney Heights, NSW 2087
Resort Living in the Heart of Killarney
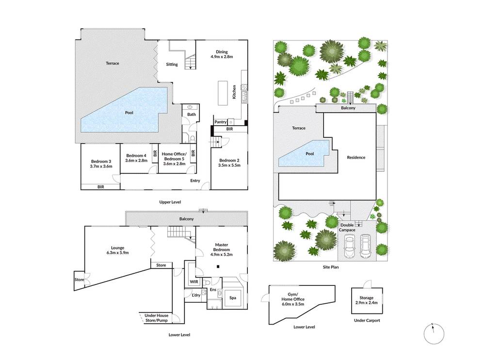
12 Rathowen Parade, Killarney Heights is proudly presented by Nima Aliasgary and Irina Bloshakova of Ray White Fairweather Group. *** This property has been SOLD @ AUCTION and will not be shown further. For more information, contact Nima on 0424 999 399 or Irina on 0405 158 265. *** Tucked away and exquisitely private, this sun-lit family home offers a resort-like atmosphere and lifestyle, featuring multi-level indoor and outdoor spaces and providing an amazing opportunity for growing families. Soaked in sunshine, the upper level hosts a sparkling solar-heated pool and secluded patio, perfect for entertaining or relaxation, 4 bedrooms and open-plan living and dining areas with tree-top views. The spacious lower-level features Parents' Retreat, complete with a large sitting room, bedroom with walk-in robe, ensuite and a luxurious spa bath, and opens out to a private balcony with gardens below, presenting a rare and serene lifestyle. Beneath the lower level resides a studio space perfect for an office or gym. • Open plan living and dining areas with tree-top views and concertina doors to the terrace • Great indoor-outdoor flow to sparkling solar-heated pool and large alfresco entertaining area • 4 bedrooms on the ground level, all with built-ins and plantation shutters • Spacious and private Parents' Retreat on the lower level with sitting room, balcony, large bedroom, walk-in robe, ensuite and luxurious 2-people spa bath • Additional room on the garden level, suitable for home office, gym or art studio • Renovated Caesarstone kitchen with island bench, double oven and Bosch dishwasher • Polished wood floors, heated rails in the bathrooms • 8 solar panels for the house, separate solar heating for the pool • 2 car carports, plenty of storage in and under the house • Large and very private garden with cubby house • Short walk to buses, popular Killarney Heights High School and Killarney Heights Primary School (with French bilingual program), sport fields, Carlisle Swimming Centre and vibrant Killarney Heights village with its specialty shops, cafes and after-school activities. Our offices: Ray White Killarney Heights / Ray White Narrabeen / Ray White Frenchs Forest **** If you don't have your finances sorted, just ask us - our Loan Market Mortgage Brokers can assist you! Call us on 9975 HOME to arrange a FREE private meeting.****
Floorplans & Interactive Tours
More Properties from KILLARNEY HEIGHTS
More Properties from Ray White - Narrabeen
Not what you are looking for?
12 Rathowen Parade, Killarney Heights, NSW 2087
Resort Living in the Heart of Killarney
12 Rathowen Parade, Killarney Heights is proudly presented by Nima Aliasgary and Irina Bloshakova of Ray White Fairweather Group. *** This property has been SOLD @ AUCTION and will not be shown further. For more information, contact Nima on 0424 999 399 or Irina on 0405 158 265. *** Tucked away and exquisitely private, this sun-lit family home offers a resort-like atmosphere and lifestyle, featuring multi-level indoor and outdoor spaces and providing an amazing opportunity for growing families. Soaked in sunshine, the upper level hosts a sparkling solar-heated pool and secluded patio, perfect for entertaining or relaxation, 4 bedrooms and open-plan living and dining areas with tree-top views. The spacious lower-level features Parents' Retreat, complete with a large sitting room, bedroom with walk-in robe, ensuite and a luxurious spa bath, and opens out to a private balcony with gardens below, presenting a rare and serene lifestyle. Beneath the lower level resides a studio space perfect for an office or gym. • Open plan living and dining areas with tree-top views and concertina doors to the terrace • Great indoor-outdoor flow to sparkling solar-heated pool and large alfresco entertaining area • 4 bedrooms on the ground level, all with built-ins and plantation shutters • Spacious and private Parents' Retreat on the lower level with sitting room, balcony, large bedroom, walk-in robe, ensuite and luxurious 2-people spa bath • Additional room on the garden level, suitable for home office, gym or art studio • Renovated Caesarstone kitchen with island bench, double oven and Bosch dishwasher • Polished wood floors, heated rails in the bathrooms • 8 solar panels for the house, separate solar heating for the pool • 2 car carports, plenty of storage in and under the house • Large and very private garden with cubby house • Short walk to buses, popular Killarney Heights High School and Killarney Heights Primary School (with French bilingual program), sport fields, Carlisle Swimming Centre and vibrant Killarney Heights village with its specialty shops, cafes and after-school activities. Our offices: Ray White Killarney Heights / Ray White Narrabeen / Ray White Frenchs Forest **** If you don't have your finances sorted, just ask us - our Loan Market Mortgage Brokers can assist you! Call us on 9975 HOME to arrange a FREE private meeting.****
























