- 1
- 2
- 3
- 4
- 5
- 1
- 2
- 3
- 4
- 5
17 Nalya Tarn, Tatachilla, SA 5171
Another SOLD by Chris Cotton!
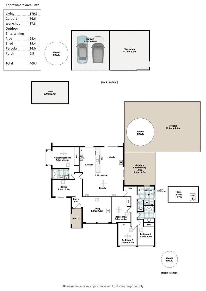
Another SOLD by Chris Cotton! Located among McLaren Vale vineyards sits your secluded 'Quinfield' estate. This amazing, architecturally designed home, set on approximately 2 acres, is just waiting for you to move straight in, nothing to do but enjoy your new home and the abundance of space, on offer, inside and out! With a perfect layout the home offers a gated front entrance, creating a driveway to your circular entrance and archway. Every aspect has been taken care of and offers a secluded haven, with garden views from every window! At the front of the home boasts a good size lounge and dining area, a great spot for the adults to entertain, offering large windows to encapsulate the light filled rooms. All four bedrooms are a fantastic size, three of them having ceiling fans and built-in robes, the fourth is currently utilised as a study/office. The master suite is very spacious offering floor to ceiling robes and a beautifully presented bathroom with shower, vanity and water closet. Set in the hub of the home is the kitchen/meals/living, which truly is spectacular, with sandstone flooring, a lofty ceiling, windows in every direction (including high panelled windows) allowing plenty of natural light; and a huge kitchen with an abundance of cupboard and bench space, induction cooktop, two-drawer dishwasher and doors opening out to the large under cover entertaining area. The laundry is vast, with plenty of cupboard space and a separate water closet. The main bathroom is tastefully modernised with shower, bath and vanity; and central to the three bedrooms and living space. To ensure you're taken care of all year round the home offers two combustion heaters (lounge and living/meals room), ceiling fans, and ducted evaporative cooling throughout. Step outside and you have plenty of rainwater with 2 x 22,500l tanks and a 1 x 50,000l tank, (plus mains water supply), which when the current owners moved in was being utilised as a pool, plenty to think about there! Lots of land outside and everything has a place with shedding consisting of a 12 x 6m shed (which includes a 6 x 6m carport), a separate utility/machinery shed 5.8 x 4.3m, both powered, and what was originally a horse stable, which could be used for various size animals. What we love: • Secluded and private • Two living areas • Huge kitchen with abundance of cupboard & bench space • Induction cooktop • Two-drawer dishwasher • Four bedrooms, or three and study/office • Master suite with ensuite • Natural light filled home • Ceiling fans • 2 x combustion heaters • Ducted evaporative air-conditioning • Undercover entertaining area • 2 x 22,500l water tanks • 1 x 50,000l water tank • 1 x Shed - 12 x 6m • 1 x carport - 6 x 6m • Utility/machinery shed Seeking a tranquil lifestyle, with fresh country air, blended with everything you need; only a short distance to some of the region's best wineries and the McLaren Vale township, where you will find cafes, restaurants, supermarkets, and so much more. A short distance and you will reach world-class beaches like Port Willunga, Maslin Beach and Moana. Nearby (approximate): • Maslin Beach - 3.8km (6min) • McLaren Vale - 5.8km (7min) • Colonnades Centro - 14.9km (19min) • Victor Harbor - 45.2km (35min) • Adelaide CBD - 40.7km (48min) If you're seeking a truly enriched lifestyle, then this is the place for you. Want to know more? Contact Chris Cotton - 0414 327 016
Floorplans & Interactive Tours
More Properties from TATACHILLA
More Properties from Harris Real Estate - Wine Coast RLA 335392
Not what you are looking for?
17 Nalya Tarn, Tatachilla, SA 5171
Another SOLD by Chris Cotton!
Another SOLD by Chris Cotton! Located among McLaren Vale vineyards sits your secluded 'Quinfield' estate. This amazing, architecturally designed home, set on approximately 2 acres, is just waiting for you to move straight in, nothing to do but enjoy your new home and the abundance of space, on offer, inside and out! With a perfect layout the home offers a gated front entrance, creating a driveway to your circular entrance and archway. Every aspect has been taken care of and offers a secluded haven, with garden views from every window! At the front of the home boasts a good size lounge and dining area, a great spot for the adults to entertain, offering large windows to encapsulate the light filled rooms. All four bedrooms are a fantastic size, three of them having ceiling fans and built-in robes, the fourth is currently utilised as a study/office. The master suite is very spacious offering floor to ceiling robes and a beautifully presented bathroom with shower, vanity and water closet. Set in the hub of the home is the kitchen/meals/living, which truly is spectacular, with sandstone flooring, a lofty ceiling, windows in every direction (including high panelled windows) allowing plenty of natural light; and a huge kitchen with an abundance of cupboard and bench space, induction cooktop, two-drawer dishwasher and doors opening out to the large under cover entertaining area. The laundry is vast, with plenty of cupboard space and a separate water closet. The main bathroom is tastefully modernised with shower, bath and vanity; and central to the three bedrooms and living space. To ensure you're taken care of all year round the home offers two combustion heaters (lounge and living/meals room), ceiling fans, and ducted evaporative cooling throughout. Step outside and you have plenty of rainwater with 2 x 22,500l tanks and a 1 x 50,000l tank, (plus mains water supply), which when the current owners moved in was being utilised as a pool, plenty to think about there! Lots of land outside and everything has a place with shedding consisting of a 12 x 6m shed (which includes a 6 x 6m carport), a separate utility/machinery shed 5.8 x 4.3m, both powered, and what was originally a horse stable, which could be used for various size animals. What we love: • Secluded and private • Two living areas • Huge kitchen with abundance of cupboard & bench space • Induction cooktop • Two-drawer dishwasher • Four bedrooms, or three and study/office • Master suite with ensuite • Natural light filled home • Ceiling fans • 2 x combustion heaters • Ducted evaporative air-conditioning • Undercover entertaining area • 2 x 22,500l water tanks • 1 x 50,000l water tank • 1 x Shed - 12 x 6m • 1 x carport - 6 x 6m • Utility/machinery shed Seeking a tranquil lifestyle, with fresh country air, blended with everything you need; only a short distance to some of the region's best wineries and the McLaren Vale township, where you will find cafes, restaurants, supermarkets, and so much more. A short distance and you will reach world-class beaches like Port Willunga, Maslin Beach and Moana. Nearby (approximate): • Maslin Beach - 3.8km (6min) • McLaren Vale - 5.8km (7min) • Colonnades Centro - 14.9km (19min) • Victor Harbor - 45.2km (35min) • Adelaide CBD - 40.7km (48min) If you're seeking a truly enriched lifestyle, then this is the place for you. Want to know more? Contact Chris Cotton - 0414 327 016






















































