- 1
- 2
- 3
- 4
- 5
- 1
- 2
- 3
- 4
- 5
2/17 View Street, Pascoe Vale, VIC 3044
All Around Allure
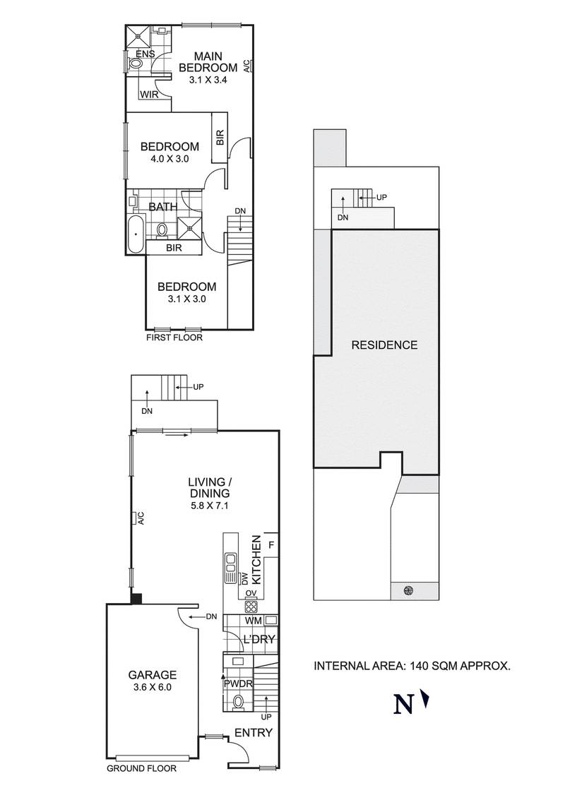
Flaunting street frontage and fantastic features, this contemporary three bedroom, two bathroom residence welcomes you to stylish modern living in the Strathmore College zone. Filled with quality stainless steel appliances from names including Blanco and Bosch, a spacious open kitchen/dining/family leads to a private courtyard with super light maintenance needs. Bedrooms are all a very comfortable size, and while two host built-in robes the main features a walk-in robe and ensuite. There's both a bath and separate shower in the gleaming family bathroom, while a powder room and laundry add extra convenience. Parquetry, heating/cooling, an individual driveway and direct entry automatic garage also feature. A stroll to transport, local shops and Rayner Reserve, this impressive home is also close to schools.
Floorplans & Interactive Tours
More Properties from Pascoe Vale
More Properties from Barry Plant - Inner City Group
Not what you are looking for?
2/17 View Street, Pascoe Vale, VIC 3044
All Around Allure
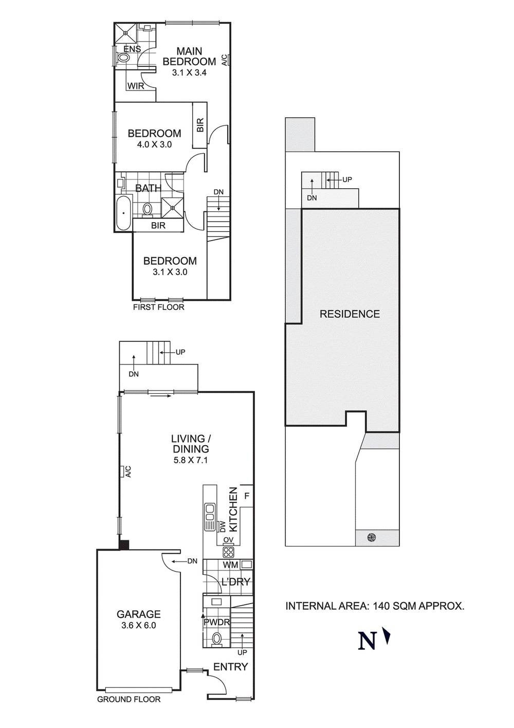
Flaunting street frontage and fantastic features, this contemporary three bedroom, two bathroom residence welcomes you to stylish modern living in the Strathmore College zone. Filled with quality stainless steel appliances from names including Blanco and Bosch, a spacious open kitchen/dining/family leads to a private courtyard with super light maintenance needs. Bedrooms are all a very comfortable size, and while two host built-in robes the main features a walk-in robe and ensuite. There's both a bath and separate shower in the gleaming family bathroom, while a powder room and laundry add extra convenience. Parquetry, heating/cooling, an individual driveway and direct entry automatic garage also feature. A stroll to transport, local shops and Rayner Reserve, this impressive home is also close to schools.






















